- April 21, 2026
Loading
Townhouses are being proposed to replace a bowling alley in Sarasota, a few blocks east of Main Street. Called 2250 Fruitville Townhomes, the project would bring 46 townhomes to 2250 Fruitville Road, where Sarasota Lanes is located.
Property owner Sarasota Lanes LLC has submitted an application and site plan with the city of Sarasota to redevelop its 1.94 acres.
Sarasota Lanes, a 29,700-square-foot bowling alley, would be demolished to make way for the residential project. It is permanently closed for business.
Tom Hubbard, the manager of Sarasota Lanes, is listed as the applicant, and he is seeking a few modifications from the city to accommodate the project.
Currently, the property at 2250 Fruitville Road is zoned commercial general with a future land use of urban edge, and Hubbard seeks to change the zoning to downtown edge. The site is surrounded by a parking garage, retail and other commercial uses, the application says.
“This is a significant investment in the area which should encourage continued redevelopment on the surrounding properties,” Hubbard says in the application.
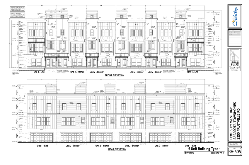
The property would be subdivided into 46 lots, and the townhomes would be constructed in eight buildings. Six buildings would contain six attached homes, while two buildings would include five townhomes. Each townhouse would be four stories and contain a two-car garage. The development would be accessible via Main Street.

In addition to rezoning, the owner is seeking adjustments to lot size and fencing requirements.
Next, the proposal will go before the Sarasota Development Review Committee April 1.